Det finns många möjligheter med KNX och därför har vi sammanställt några enkla exempel för att underlätta din projektering. Det fiktiva projektet avser en utförande entreprenad och täcker in de flesta användningsområden men har inte för avsikt att vara heltäckande.

Välj de delar som passar för just ditt projekt och anpassa efter ert redovisningssätt. Här några korta ord om de olika dokumenten som du finner längs bak i handboken.
Handlingsförteckning, bilaga 1
Sammanställning av samtliga dokument i entreprenaden. Tydlig redovisning av status och enkelt att hänvisa till då alla olika dokumenten samverkar för utförandet. Ladda ner bilaga 1
Teknisk beskrivning, bilaga 2
I EL-AMA finns koder för KNX och tekniska krav som tydligt beskriver systemet och hur installation, parametrering och idrifttagning ska gå till. Ladda ner bilaga 2
Centralredovisning, bilaga 3
Underlag för centraluppbyggnad. KNX apparater och anslutningar av linjer anges. Anslutningar av respektive styrda objekt redovisas här. Ladda ner bilaga 3
KNX Materielspecifikation, bilaga 4
Sammanställning av alla KNX apparater med respektive anslutningar etc. Genom att hänvisa hit från alla de olika dokumenten kan man här redovisa den mesta informationen på endast ett ställe. Det underlättar i projekteringen, utförandet, driftsättningen och förvaltningen. Detta dokument används gärna även senare i förvaltningen för kompletteringar och justeringar. Ladda ner bilaga 4
Funktionsbeskrivning, bilaga 5
Här redovisar du beställarens önskade funktioner. Det är ett enklare alternativ till driftkort eller som komplettering till dessa. Detta dokument används gärna även senare i förvaltningen för kompletteringar och justeringar. Ladda ner bilaga 5
Driftkort, bilaga 6
Ibland kan det vara enklare att åskådliggöra komplicerade funktioner som driftkort istället för i textform. Ladda ner bilaga 6
Gränsdragningslista, bilaga 7
För att tydliggöra gränsdragningen och ansvaret mellan olika entreprenader. Upprättas vanligen gemensamt för alla inblandade parter i entreprenaden. Ladda ner bilaga 7
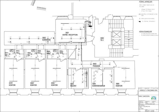
Ritningar, bilaga 8
Exempel på ritningar för kraft, belysning, KNX, styr och övervakning. Är det enkla belysningsfunktioner räcker det oftast att redovisa KNX på belysningsritningarna, men rekommendationen är att göra en egen ritning för KNX-bussen. KNX cad-symboler är svåra att tyda på en ritning varför ofta en egen symbol används med tillhörande förklaring. Nätschema KNX redovisar uppbyggnaden och här kan ofta KNX cad-symboler användas. Ladda ner bilaga 8
Källa: KNX Konsulthandboken, skaffa hela på www.knxsweden.se